<img height="1" width="1" style="display:none" src="https://www.facebook.com/tr?id=611241922821277&amp;ev=PageView&amp;noscript=1">
DAYS
HRS
MIN
SEC

We apologise for any inconvenience caused by our recent phone provider issue. The matter is being resolved, and service will return to normal shortly.

X
Sign up to be a

Heading title here

Sign up to be the first to hear about Storylines specials and updates. Add our news to your dream board as you plan your next adventure.

To view available residences & prices, simply:

Select Your Deck

Or Preferred Residence Type

arrow
Discover (internal)

RU1.1

226 sq ft

(21m2)

Flexible Space
Breeze (balcony)

RU1.2

366 - 409 sq ft

(34 - 38m2)

Entry level balcony
Explore

RU2

366 - 377 sq ft

(34 - 35m2)

1 bedroom +
Indulge

RU3

538 - 560 sq ft

(50 - 52m2)

1 bedroom +
Dream

RU4

657 - 2024 sq ft

(61 - 188m2)

1 - 2 bedroom options
Imagine

RU4.1

936 sq ft

(87m2)

1 bedroom
Inspire

RU4.2

1119 sq ft

(104m2)

2 bedrooms
Envision

RU4.3

1238 sq ft

(115m2)

2 bedrooms
Wonder

RU4.4

1313 - 1324 sq ft

(122 - 123m2)

2 bedrooms
Global

RU5

1485 - 2390 sq ft

(138 - 222m2)

2 - 4 bedrooms, over 2 levels
Encore

RU5.1

1485 sq ft

(138m2)

2 - 3 bedrooms

*Due to the complexity of ship construction, engineering, and safety requirements, minor variances in the square footage and residence design are possible throughout mid construction.

Welcome to Storylines..
Residential Units
Deck
Residence Type*

RU stands for Residential Unit. RU1 is the smallest entry level option, and they go up from there to our RU5 at 2,411sf.

Annual Fee
Display
Only Show Available Units
RU1.1

RU 1.1 Discover RU 1.1

No.
#7015

$ 466,190 $625,590 $770,963 $912,271 $1,038,923

226 sq ft
(21 m2)

*All dimensions and unit sizes are approximate and subject to change.
  • Location
  • Deck Level
    7
  • Type Variant
    RU 1.1
  • Side of Ship
    Port
  • Location
    Forward-Middle
  • Annual Inclusive Living Fees Equals just $2,596 per person per month
    Based on 2 people twin share
    all inclusive*
    • 45 unique resident lounges
    • Private kitchen facilities
    • All meals in 20 unique dining venues
    • Beverages including select wine, beer, spirits, cocktails, coffees, juices, blends
    • 24-hour room service
    • Fast Internet and Wi-Fi throughout the ship
    • Dozens of kitchen entertainment areas to prepare food yourself
    • Premium satellite television
    • Laundry pick-up wash and fold, or self-service laundry
    • Gym, fitness facilities, recreational and sporting equipment
    • Oceanside marina precinct with direct water access and watercraft
    • Yoga studio, chapel, artist studio, and many unique areas
    • A world of activities, events, sports, arts, performances, music, dancing, exercise
    • Hobby areas from fishing and tackle and golf to
    • Checkup and wellness visits with the onboard doctor
    • All onboard service gratuities
    • Fuel, port taxes, and Insurances
    • Upkeep of vessel to 5-star
    • Stylishly decorated spaces to live in surrounded by inspiring art and fresh food gardens
    • Billion dollar views from every balcony changing weekly
    $62,314

RU 1.1 Discover

No. #7015

226 sq ft

Designed in a variety of configurations, that combine intimacy of a studio with a comfort and convenience of en-suite bathrooms and separate lounge and kitchen areas. View can be enjoyed from your own private balcony.

The spacious RU2 homes available for 25% Shared Purchase are outside balcony units with two Murphy beds. There is a dry minibar to separate the spaces. The minibar includes an under-counter refrigerator and microwave.

At over 29 feet long plus your private balcony, you have multiple areas to spread out and get comfortable.

The furnishings are all designed to be flexible. One of the Murphy beds folds up out of the way during the day and is replaced with a couch. The other bed folds up to a flat wall to make space for a table and chairs.

This residence has a light and fresh ‘coastal’ interior design style. There are many thoughtful storage solutions utilized throughout. The bathroom features a shower stall.

Upon entering this spacious home at sea you will notice an open floor plan with views from every room.

There is a four-seat dining table for entertaining guests and family. The wet bar includes a microwave, two burner induction cooktop, and an under-counter refrigerator and freezer. The sink includes a multi-tap filtered water system with sparkling, chilled and boiling water.

A generous lounge area is a comfortable place to relax and watch your favorite shows on TV or to make the most of the ever-changing views.

The balcony includes a two-person hanging loveseat and a place to enjoy your morning coffee or stargaze in the evening.

The primary bedroom has a large walk-in wardrobe and double vanity with a full soaking tub in the bathroom.

This residence also has a second bathroom with a shower, so your privacy is maintained even when entertaining guests.

The furnishings are all designed to be flexible. The Murphy bed folds up out of the way during the day to make room for an extra seating area.

This residence has a light and fresh ‘coastal’ interior design style. Loads of thoughtful storage spaces are utilized throughout the home.

Shared Purchase
Freedom
Flexibility
Seasonal
Resort Living
Affordable
The Buying Process
1
Select a residence
2
Select a season
3
Complete the payment
4
Join the community
RU1 Bar RU1 (all) Bed and Bathroom
RU 1 Bedroom RU1.1 & 1.2 Bedroom
Bathroom and study RU1 (All) Bathroom and study
RU 1 Bathroom RU1 Bathroom
RU1.1
Deck_7
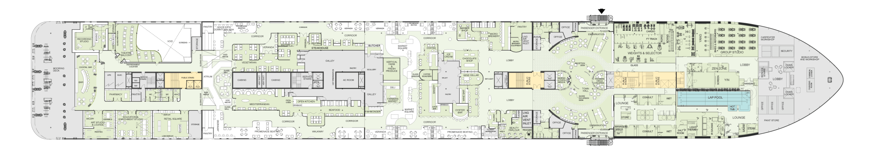
Floor Plan for Deck 7
RU1.1

RU 1.1 Discover RU 1.1

No.
#7033

$ 444,762 $596,834 $735,525 $870,339 $991,168

226 sq ft
(21 m2)

*All dimensions and unit sizes are approximate and subject to change.
  • Location
  • Deck Level
    7
  • Type Variant
    RU 1.1
  • Side of Ship
    Port
  • Location
    Aft
  • Annual Inclusive Living Fees Equals just $2,502 per person per month
    Based on 2 people twin share
    all inclusive*
    • 45 unique resident lounges
    • Private kitchen facilities
    • All meals in 20 unique dining venues
    • Beverages including select wine, beer, spirits, cocktails, coffees, juices, blends
    • 24-hour room service
    • Fast Internet and Wi-Fi throughout the ship
    • Dozens of kitchen entertainment areas to prepare food yourself
    • Premium satellite television
    • Laundry pick-up wash and fold, or self-service laundry
    • Gym, fitness facilities, recreational and sporting equipment
    • Oceanside marina precinct with direct water access and watercraft
    • Yoga studio, chapel, artist studio, and many unique areas
    • A world of activities, events, sports, arts, performances, music, dancing, exercise
    • Hobby areas from fishing and tackle and golf to
    • Checkup and wellness visits with the onboard doctor
    • All onboard service gratuities
    • Fuel, port taxes, and Insurances
    • Upkeep of vessel to 5-star
    • Stylishly decorated spaces to live in surrounded by inspiring art and fresh food gardens
    • Billion dollar views from every balcony changing weekly
    $60,064

RU 1.1 Discover

No. #7033

226 sq ft

Designed in a variety of configurations, that combine intimacy of a studio with a comfort and convenience of en-suite bathrooms and separate lounge and kitchen areas. View can be enjoyed from your own private balcony.

The spacious RU2 homes available for 25% Shared Purchase are outside balcony units with two Murphy beds. There is a dry minibar to separate the spaces. The minibar includes an under-counter refrigerator and microwave.

At over 29 feet long plus your private balcony, you have multiple areas to spread out and get comfortable.

The furnishings are all designed to be flexible. One of the Murphy beds folds up out of the way during the day and is replaced with a couch. The other bed folds up to a flat wall to make space for a table and chairs.

This residence has a light and fresh ‘coastal’ interior design style. There are many thoughtful storage solutions utilized throughout. The bathroom features a shower stall.

Upon entering this spacious home at sea you will notice an open floor plan with views from every room.

There is a four-seat dining table for entertaining guests and family. The wet bar includes a microwave, two burner induction cooktop, and an under-counter refrigerator and freezer. The sink includes a multi-tap filtered water system with sparkling, chilled and boiling water.

A generous lounge area is a comfortable place to relax and watch your favorite shows on TV or to make the most of the ever-changing views.

The balcony includes a two-person hanging loveseat and a place to enjoy your morning coffee or stargaze in the evening.

The primary bedroom has a large walk-in wardrobe and double vanity with a full soaking tub in the bathroom.

This residence also has a second bathroom with a shower, so your privacy is maintained even when entertaining guests.

The furnishings are all designed to be flexible. The Murphy bed folds up out of the way during the day to make room for an extra seating area.

This residence has a light and fresh ‘coastal’ interior design style. Loads of thoughtful storage spaces are utilized throughout the home.

Shared Purchase
Freedom
Flexibility
Seasonal
Resort Living
Affordable
The Buying Process
1
Select a residence
2
Select a season
3
Complete the payment
4
Join the community
RU1 Bar RU1 (all) Bed and Bathroom
RU 1 Bedroom RU1.1 & 1.2 Bedroom
Bathroom and study RU1 (All) Bathroom and study
RU 1 Bathroom RU1 Bathroom
RU1.1
Deck_7
Floor Plan for Deck 7
RU1.2

RU 1.2 Breeze RU 1.2

No.
#7038

$ 817,310 $1,821,406 $1,137,150 $1,345,577 $1,821,406

409 sq ft
(38 m2)

*All dimensions and unit sizes are approximate and subject to change.
  • Location
  • Deck Level
    7
  • Type Variant
    RU 1.2
  • Side of Ship
    Port
  • Location
    Aft
  • Annual Inclusive Living Fees Equals just $3,936 per person per month
    Based on 2 people twin share
    all inclusive*
    • 45 unique resident lounges
    • Private kitchen facilities
    • All meals in 20 unique dining venues
    • Beverages including select wine, beer, spirits, cocktails, coffees, juices, blends
    • 24-hour room service
    • Fast Internet and Wi-Fi throughout the ship
    • Dozens of kitchen entertainment areas to prepare food yourself
    • Premium satellite television
    • Laundry pick-up wash and fold, or self-service laundry
    • Gym, fitness facilities, recreational and sporting equipment
    • Oceanside marina precinct with direct water access and watercraft
    • Yoga studio, chapel, artist studio, and many unique areas
    • A world of activities, events, sports, arts, performances, music, dancing, exercise
    • Hobby areas from fishing and tackle and golf to
    • Checkup and wellness visits with the onboard doctor
    • All onboard service gratuities
    • Fuel, port taxes, and Insurances
    • Upkeep of vessel to 5-star
    • Stylishly decorated spaces to live in surrounded by inspiring art and fresh food gardens
    • Billion dollar views from every balcony changing weekly
    $94,473

RU 1.2 Breeze

No. #7038

409 sq ft

Designed in a variety of configurations, that combine intimacy of a studio with a comfort and convenience of en-suite bathrooms and separate lounge and kitchen areas. View can be enjoyed from your own private balcony.

The spacious RU2 homes available for 25% Shared Purchase are outside balcony units with two Murphy beds. There is a dry minibar to separate the spaces. The minibar includes an under-counter refrigerator and microwave.

At over 29 feet long plus your private balcony, you have multiple areas to spread out and get comfortable.

The furnishings are all designed to be flexible. One of the Murphy beds folds up out of the way during the day and is replaced with a couch. The other bed folds up to a flat wall to make space for a table and chairs.

This residence has a light and fresh ‘coastal’ interior design style. There are many thoughtful storage solutions utilized throughout. The bathroom features a shower stall.

Upon entering this spacious home at sea you will notice an open floor plan with views from every room.

There is a four-seat dining table for entertaining guests and family. The wet bar includes a microwave, two burner induction cooktop, and an under-counter refrigerator and freezer. The sink includes a multi-tap filtered water system with sparkling, chilled and boiling water.

A generous lounge area is a comfortable place to relax and watch your favorite shows on TV or to make the most of the ever-changing views.

The balcony includes a two-person hanging loveseat and a place to enjoy your morning coffee or stargaze in the evening.

The primary bedroom has a large walk-in wardrobe and double vanity with a full soaking tub in the bathroom.

This residence also has a second bathroom with a shower, so your privacy is maintained even when entertaining guests.

The furnishings are all designed to be flexible. The Murphy bed folds up out of the way during the day to make room for an extra seating area.

This residence has a light and fresh ‘coastal’ interior design style. Loads of thoughtful storage spaces are utilized throughout the home.

Shared Purchase
Freedom
Flexibility
Seasonal
Resort Living
Affordable
The Buying Process
1
Select a residence
2
Select a season
3
Complete the payment
4
Join the community
RU1 Bar RU1 Day viewB
RU 1 Night View RU1 Night view
RU 1 Bathroom RU1 Bathroom
Typical balcony, RU4 shown RU4 Balcony
RU1.2
RU1.2
Deck_7
Floor Plan for Deck 7
RU1.2

RU 1.2 Breeze RU 1.2

No.
#7101

$ 805,196 $1,080,508 $1,137,150 $1,345,577 $1,794,409

398 sq ft
(37 m2)

*All dimensions and unit sizes are approximate and subject to change.
  • Location
  • Deck Level
    7
  • Type Variant
    RU 1.2
  • Side of Ship
    Starboard
  • Location
    Forward
  • Annual Inclusive Living Fees Equals just $3,893 per person per month
    Based on 2 people twin share
    all inclusive*
    • 45 unique resident lounges
    • Private kitchen facilities
    • All meals in 20 unique dining venues
    • Beverages including select wine, beer, spirits, cocktails, coffees, juices, blends
    • 24-hour room service
    • Fast Internet and Wi-Fi throughout the ship
    • Dozens of kitchen entertainment areas to prepare food yourself
    • Premium satellite television
    • Laundry pick-up wash and fold, or self-service laundry
    • Gym, fitness facilities, recreational and sporting equipment
    • Oceanside marina precinct with direct water access and watercraft
    • Yoga studio, chapel, artist studio, and many unique areas
    • A world of activities, events, sports, arts, performances, music, dancing, exercise
    • Hobby areas from fishing and tackle and golf to
    • Checkup and wellness visits with the onboard doctor
    • All onboard service gratuities
    • Fuel, port taxes, and Insurances
    • Upkeep of vessel to 5-star
    • Stylishly decorated spaces to live in surrounded by inspiring art and fresh food gardens
    • Billion dollar views from every balcony changing weekly
    $93,451

RU 1.2 Breeze

No. #7101

398 sq ft

Designed in a variety of configurations, that combine intimacy of a studio with a comfort and convenience of en-suite bathrooms and separate lounge and kitchen areas. View can be enjoyed from your own private balcony.

The spacious RU2 homes available for 25% Shared Purchase are outside balcony units with two Murphy beds. There is a dry minibar to separate the spaces. The minibar includes an under-counter refrigerator and microwave.

At over 29 feet long plus your private balcony, you have multiple areas to spread out and get comfortable.

The furnishings are all designed to be flexible. One of the Murphy beds folds up out of the way during the day and is replaced with a couch. The other bed folds up to a flat wall to make space for a table and chairs.

This residence has a light and fresh ‘coastal’ interior design style. There are many thoughtful storage solutions utilized throughout. The bathroom features a shower stall.

Upon entering this spacious home at sea you will notice an open floor plan with views from every room.

There is a four-seat dining table for entertaining guests and family. The wet bar includes a microwave, two burner induction cooktop, and an under-counter refrigerator and freezer. The sink includes a multi-tap filtered water system with sparkling, chilled and boiling water.

A generous lounge area is a comfortable place to relax and watch your favorite shows on TV or to make the most of the ever-changing views.

The balcony includes a two-person hanging loveseat and a place to enjoy your morning coffee or stargaze in the evening.

The primary bedroom has a large walk-in wardrobe and double vanity with a full soaking tub in the bathroom.

This residence also has a second bathroom with a shower, so your privacy is maintained even when entertaining guests.

The furnishings are all designed to be flexible. The Murphy bed folds up out of the way during the day to make room for an extra seating area.

This residence has a light and fresh ‘coastal’ interior design style. Loads of thoughtful storage spaces are utilized throughout the home.

Shared Purchase
Freedom
Flexibility
Seasonal
Resort Living
Affordable
The Buying Process
1
Select a residence
2
Select a season
3
Complete the payment
4
Join the community
RU1 Bar RU1 Day viewB
RU 1 Night View RU1 Night view
RU 1 Bathroom RU1 Bathroom
Typical balcony, RU4 shown RU4 Balcony
RU1.2
RU1.2
Deck_7
Floor Plan for Deck 7
RU1.1

RU 1.1 Discover RU 1.1

No.
#7104

$ 449,048 $602,585 $742,613 $878,725 $1,000,719

226 sq ft
(21 m2)

*All dimensions and unit sizes are approximate and subject to change.
  • Location
  • Deck Level
    7
  • Type Variant
    RU 1.1
  • Side of Ship
    Starboard
  • Location
    Forward
  • Annual Inclusive Living Fees Equals just $2,513 per person per month
    Based on 2 people twin share
    all inclusive*
    • 45 unique resident lounges
    • Private kitchen facilities
    • All meals in 20 unique dining venues
    • Beverages including select wine, beer, spirits, cocktails, coffees, juices, blends
    • 24-hour room service
    • Fast Internet and Wi-Fi throughout the ship
    • Dozens of kitchen entertainment areas to prepare food yourself
    • Premium satellite television
    • Laundry pick-up wash and fold, or self-service laundry
    • Gym, fitness facilities, recreational and sporting equipment
    • Oceanside marina precinct with direct water access and watercraft
    • Yoga studio, chapel, artist studio, and many unique areas
    • A world of activities, events, sports, arts, performances, music, dancing, exercise
    • Hobby areas from fishing and tackle and golf to
    • Checkup and wellness visits with the onboard doctor
    • All onboard service gratuities
    • Fuel, port taxes, and Insurances
    • Upkeep of vessel to 5-star
    • Stylishly decorated spaces to live in surrounded by inspiring art and fresh food gardens
    • Billion dollar views from every balcony changing weekly
    $60,314

RU 1.1 Discover

No. #7104

226 sq ft

Designed in a variety of configurations, that combine intimacy of a studio with a comfort and convenience of en-suite bathrooms and separate lounge and kitchen areas. View can be enjoyed from your own private balcony.

The spacious RU2 homes available for 25% Shared Purchase are outside balcony units with two Murphy beds. There is a dry minibar to separate the spaces. The minibar includes an under-counter refrigerator and microwave.

At over 29 feet long plus your private balcony, you have multiple areas to spread out and get comfortable.

The furnishings are all designed to be flexible. One of the Murphy beds folds up out of the way during the day and is replaced with a couch. The other bed folds up to a flat wall to make space for a table and chairs.

This residence has a light and fresh ‘coastal’ interior design style. There are many thoughtful storage solutions utilized throughout. The bathroom features a shower stall.

Upon entering this spacious home at sea you will notice an open floor plan with views from every room.

There is a four-seat dining table for entertaining guests and family. The wet bar includes a microwave, two burner induction cooktop, and an under-counter refrigerator and freezer. The sink includes a multi-tap filtered water system with sparkling, chilled and boiling water.

A generous lounge area is a comfortable place to relax and watch your favorite shows on TV or to make the most of the ever-changing views.

The balcony includes a two-person hanging loveseat and a place to enjoy your morning coffee or stargaze in the evening.

The primary bedroom has a large walk-in wardrobe and double vanity with a full soaking tub in the bathroom.

This residence also has a second bathroom with a shower, so your privacy is maintained even when entertaining guests.

The furnishings are all designed to be flexible. The Murphy bed folds up out of the way during the day to make room for an extra seating area.

This residence has a light and fresh ‘coastal’ interior design style. Loads of thoughtful storage spaces are utilized throughout the home.

Shared Purchase
Freedom
Flexibility
Seasonal
Resort Living
Affordable
The Buying Process
1
Select a residence
2
Select a season
3
Complete the payment
4
Join the community
RU1 Bar RU1 (all) Bed and Bathroom
RU 1 Bedroom RU1.1 & 1.2 Bedroom
Bathroom and study RU1 (All) Bathroom and study
RU 1 Bathroom RU1 Bathroom
RU1.1
Deck_7
Floor Plan for Deck 7
RU1.1

RU 1.1 Discover RU 1.1

No.
#7122

$ 482,857 $647,955 $798,525 $944,886 $1,076,065

226 sq ft
(21 m2)

*All dimensions and unit sizes are approximate and subject to change.
  • Location
  • Deck Level
    7
  • Type Variant
    RU 1.1
  • Side of Ship
    Starboard
  • Location
    Middle
  • Annual Inclusive Living Fees Equals just $2,669 per person per month
    Based on 2 people twin share
    all inclusive*
    • 45 unique resident lounges
    • Private kitchen facilities
    • All meals in 20 unique dining venues
    • Beverages including select wine, beer, spirits, cocktails, coffees, juices, blends
    • 24-hour room service
    • Fast Internet and Wi-Fi throughout the ship
    • Dozens of kitchen entertainment areas to prepare food yourself
    • Premium satellite television
    • Laundry pick-up wash and fold, or self-service laundry
    • Gym, fitness facilities, recreational and sporting equipment
    • Oceanside marina precinct with direct water access and watercraft
    • Yoga studio, chapel, artist studio, and many unique areas
    • A world of activities, events, sports, arts, performances, music, dancing, exercise
    • Hobby areas from fishing and tackle and golf to
    • Checkup and wellness visits with the onboard doctor
    • All onboard service gratuities
    • Fuel, port taxes, and Insurances
    • Upkeep of vessel to 5-star
    • Stylishly decorated spaces to live in surrounded by inspiring art and fresh food gardens
    • Billion dollar views from every balcony changing weekly
    $64,064

RU 1.1 Discover

No. #7122

226 sq ft

Designed in a variety of configurations, that combine intimacy of a studio with a comfort and convenience of en-suite bathrooms and separate lounge and kitchen areas. View can be enjoyed from your own private balcony.

The spacious RU2 homes available for 25% Shared Purchase are outside balcony units with two Murphy beds. There is a dry minibar to separate the spaces. The minibar includes an under-counter refrigerator and microwave.

At over 29 feet long plus your private balcony, you have multiple areas to spread out and get comfortable.

The furnishings are all designed to be flexible. One of the Murphy beds folds up out of the way during the day and is replaced with a couch. The other bed folds up to a flat wall to make space for a table and chairs.

This residence has a light and fresh ‘coastal’ interior design style. There are many thoughtful storage solutions utilized throughout. The bathroom features a shower stall.

Upon entering this spacious home at sea you will notice an open floor plan with views from every room.

There is a four-seat dining table for entertaining guests and family. The wet bar includes a microwave, two burner induction cooktop, and an under-counter refrigerator and freezer. The sink includes a multi-tap filtered water system with sparkling, chilled and boiling water.

A generous lounge area is a comfortable place to relax and watch your favorite shows on TV or to make the most of the ever-changing views.

The balcony includes a two-person hanging loveseat and a place to enjoy your morning coffee or stargaze in the evening.

The primary bedroom has a large walk-in wardrobe and double vanity with a full soaking tub in the bathroom.

This residence also has a second bathroom with a shower, so your privacy is maintained even when entertaining guests.

The furnishings are all designed to be flexible. The Murphy bed folds up out of the way during the day to make room for an extra seating area.

This residence has a light and fresh ‘coastal’ interior design style. Loads of thoughtful storage spaces are utilized throughout the home.

Shared Purchase
Freedom
Flexibility
Seasonal
Resort Living
Affordable
The Buying Process
1
Select a residence
2
Select a season
3
Complete the payment
4
Join the community
RU1 Bar RU1 (all) Bed and Bathroom
RU 1 Bedroom RU1.1 & 1.2 Bedroom
Bathroom and study RU1 (All) Bathroom and study
RU 1 Bathroom RU1 Bathroom
RU1.1
Deck_7
Floor Plan for Deck 7
RU1.2

RU 1.2 Breeze RU 1.2

No.
#7141

$ 814,786 $1,093,378 $1,133,213 $1,340,918 $1,815,782

409 sq ft
(38 m2)

*All dimensions and unit sizes are approximate and subject to change.
  • Location
  • Deck Level
    7
  • Type Variant
    RU 1.2
  • Side of Ship
    Starboard
  • Location
    Aft
  • Annual Inclusive Living Fees Equals just $3,925 per person per month
    Based on 2 people twin share
    all inclusive*
    • 45 unique resident lounges
    • Private kitchen facilities
    • All meals in 20 unique dining venues
    • Beverages including select wine, beer, spirits, cocktails, coffees, juices, blends
    • 24-hour room service
    • Fast Internet and Wi-Fi throughout the ship
    • Dozens of kitchen entertainment areas to prepare food yourself
    • Premium satellite television
    • Laundry pick-up wash and fold, or self-service laundry
    • Gym, fitness facilities, recreational and sporting equipment
    • Oceanside marina precinct with direct water access and watercraft
    • Yoga studio, chapel, artist studio, and many unique areas
    • A world of activities, events, sports, arts, performances, music, dancing, exercise
    • Hobby areas from fishing and tackle and golf to
    • Checkup and wellness visits with the onboard doctor
    • All onboard service gratuities
    • Fuel, port taxes, and Insurances
    • Upkeep of vessel to 5-star
    • Stylishly decorated spaces to live in surrounded by inspiring art and fresh food gardens
    • Billion dollar views from every balcony changing weekly
    $94,223

RU 1.2 Breeze

No. #7141

409 sq ft

Designed in a variety of configurations, that combine intimacy of a studio with a comfort and convenience of en-suite bathrooms and separate lounge and kitchen areas. View can be enjoyed from your own private balcony.

The spacious RU2 homes available for 25% Shared Purchase are outside balcony units with two Murphy beds. There is a dry minibar to separate the spaces. The minibar includes an under-counter refrigerator and microwave.

At over 29 feet long plus your private balcony, you have multiple areas to spread out and get comfortable.

The furnishings are all designed to be flexible. One of the Murphy beds folds up out of the way during the day and is replaced with a couch. The other bed folds up to a flat wall to make space for a table and chairs.

This residence has a light and fresh ‘coastal’ interior design style. There are many thoughtful storage solutions utilized throughout. The bathroom features a shower stall.

Upon entering this spacious home at sea you will notice an open floor plan with views from every room.

There is a four-seat dining table for entertaining guests and family. The wet bar includes a microwave, two burner induction cooktop, and an under-counter refrigerator and freezer. The sink includes a multi-tap filtered water system with sparkling, chilled and boiling water.

A generous lounge area is a comfortable place to relax and watch your favorite shows on TV or to make the most of the ever-changing views.

The balcony includes a two-person hanging loveseat and a place to enjoy your morning coffee or stargaze in the evening.

The primary bedroom has a large walk-in wardrobe and double vanity with a full soaking tub in the bathroom.

This residence also has a second bathroom with a shower, so your privacy is maintained even when entertaining guests.

The furnishings are all designed to be flexible. The Murphy bed folds up out of the way during the day to make room for an extra seating area.

This residence has a light and fresh ‘coastal’ interior design style. Loads of thoughtful storage spaces are utilized throughout the home.

Shared Purchase
Freedom
Flexibility
Seasonal
Resort Living
Affordable
The Buying Process
1
Select a residence
2
Select a season
3
Complete the payment
4
Join the community
RU1 Bar RU1 Day viewB
RU 1 Night View RU1 Night view
RU 1 Bathroom RU1 Bathroom
Typical balcony, RU4 shown RU4 Balcony
RU1.2
RU1.2
Deck_7
Floor Plan for Deck 7
RU1.2

RU 1.2 Breeze RU 1.2

No.
#8002

$ 799,240 $1,781,136 $1,188,338 $1,406,147 $1,781,136

355 sq ft
(33 m2)

*All dimensions and unit sizes are approximate and subject to change.
  • Location
  • Deck Level
    8
  • Type Variant
    RU 1.2
  • Side of Ship
    Port
  • Location
    Forward
  • Annual Inclusive Living Fees Equals just $3,780 per person per month
    Based on 2 people twin share
    all inclusive*
    • 45 unique resident lounges
    • Private kitchen facilities
    • All meals in 20 unique dining venues
    • Beverages including select wine, beer, spirits, cocktails, coffees, juices, blends
    • 24-hour room service
    • Fast Internet and Wi-Fi throughout the ship
    • Dozens of kitchen entertainment areas to prepare food yourself
    • Premium satellite television
    • Laundry pick-up wash and fold, or self-service laundry
    • Gym, fitness facilities, recreational and sporting equipment
    • Oceanside marina precinct with direct water access and watercraft
    • Yoga studio, chapel, artist studio, and many unique areas
    • A world of activities, events, sports, arts, performances, music, dancing, exercise
    • Hobby areas from fishing and tackle and golf to
    • Checkup and wellness visits with the onboard doctor
    • All onboard service gratuities
    • Fuel, port taxes, and Insurances
    • Upkeep of vessel to 5-star
    • Stylishly decorated spaces to live in surrounded by inspiring art and fresh food gardens
    • Billion dollar views from every balcony changing weekly
    $90,730

RU 1.2 Breeze

No. #8002

355 sq ft

Designed in a variety of configurations, that combine intimacy of a studio with a comfort and convenience of en-suite bathrooms and separate lounge and kitchen areas. View can be enjoyed from your own private balcony.

The spacious RU2 homes available for 25% Shared Purchase are outside balcony units with two Murphy beds. There is a dry minibar to separate the spaces. The minibar includes an under-counter refrigerator and microwave.

At over 29 feet long plus your private balcony, you have multiple areas to spread out and get comfortable.

The furnishings are all designed to be flexible. One of the Murphy beds folds up out of the way during the day and is replaced with a couch. The other bed folds up to a flat wall to make space for a table and chairs.

This residence has a light and fresh ‘coastal’ interior design style. There are many thoughtful storage solutions utilized throughout. The bathroom features a shower stall.

Upon entering this spacious home at sea you will notice an open floor plan with views from every room.

There is a four-seat dining table for entertaining guests and family. The wet bar includes a microwave, two burner induction cooktop, and an under-counter refrigerator and freezer. The sink includes a multi-tap filtered water system with sparkling, chilled and boiling water.

A generous lounge area is a comfortable place to relax and watch your favorite shows on TV or to make the most of the ever-changing views.

The balcony includes a two-person hanging loveseat and a place to enjoy your morning coffee or stargaze in the evening.

The primary bedroom has a large walk-in wardrobe and double vanity with a full soaking tub in the bathroom.

This residence also has a second bathroom with a shower, so your privacy is maintained even when entertaining guests.

The furnishings are all designed to be flexible. The Murphy bed folds up out of the way during the day to make room for an extra seating area.

This residence has a light and fresh ‘coastal’ interior design style. Loads of thoughtful storage spaces are utilized throughout the home.

Shared Purchase
Freedom
Flexibility
Seasonal
Resort Living
Affordable
The Buying Process
1
Select a residence
2
Select a season
3
Complete the payment
4
Join the community
RU1 Bar RU1 Day viewB
RU 1 Night View RU1 Night view
RU 1 Bathroom RU1 Bathroom
Typical balcony, RU4 shown RU4 Balcony
RU1.2
RU1.2
Deck_8
Floor Plan for Deck 8
RU1.2

RU 1.2 Breeze RU 1.2

No.
#8048

$ 811,456 $1,808,358 $1,192,275 $1,410,806 $1,808,358

355 sq ft
(33 m2)

*All dimensions and unit sizes are approximate and subject to change.
  • Location
  • Deck Level
    8
  • Type Variant
    RU 1.2
  • Side of Ship
    Port
  • Location
    Aft
  • Annual Inclusive Living Fees Equals just $3,824 per person per month
    Based on 2 people twin share
    all inclusive*
    • 45 unique resident lounges
    • Private kitchen facilities
    • All meals in 20 unique dining venues
    • Beverages including select wine, beer, spirits, cocktails, coffees, juices, blends
    • 24-hour room service
    • Fast Internet and Wi-Fi throughout the ship
    • Dozens of kitchen entertainment areas to prepare food yourself
    • Premium satellite television
    • Laundry pick-up wash and fold, or self-service laundry
    • Gym, fitness facilities, recreational and sporting equipment
    • Oceanside marina precinct with direct water access and watercraft
    • Yoga studio, chapel, artist studio, and many unique areas
    • A world of activities, events, sports, arts, performances, music, dancing, exercise
    • Hobby areas from fishing and tackle and golf to
    • Checkup and wellness visits with the onboard doctor
    • All onboard service gratuities
    • Fuel, port taxes, and Insurances
    • Upkeep of vessel to 5-star
    • Stylishly decorated spaces to live in surrounded by inspiring art and fresh food gardens
    • Billion dollar views from every balcony changing weekly
    $91,798

RU 1.2 Breeze

No. #8048

355 sq ft

Designed in a variety of configurations, that combine intimacy of a studio with a comfort and convenience of en-suite bathrooms and separate lounge and kitchen areas. View can be enjoyed from your own private balcony.

The spacious RU2 homes available for 25% Shared Purchase are outside balcony units with two Murphy beds. There is a dry minibar to separate the spaces. The minibar includes an under-counter refrigerator and microwave.

At over 29 feet long plus your private balcony, you have multiple areas to spread out and get comfortable.

The furnishings are all designed to be flexible. One of the Murphy beds folds up out of the way during the day and is replaced with a couch. The other bed folds up to a flat wall to make space for a table and chairs.

This residence has a light and fresh ‘coastal’ interior design style. There are many thoughtful storage solutions utilized throughout. The bathroom features a shower stall.

Upon entering this spacious home at sea you will notice an open floor plan with views from every room.

There is a four-seat dining table for entertaining guests and family. The wet bar includes a microwave, two burner induction cooktop, and an under-counter refrigerator and freezer. The sink includes a multi-tap filtered water system with sparkling, chilled and boiling water.

A generous lounge area is a comfortable place to relax and watch your favorite shows on TV or to make the most of the ever-changing views.

The balcony includes a two-person hanging loveseat and a place to enjoy your morning coffee or stargaze in the evening.

The primary bedroom has a large walk-in wardrobe and double vanity with a full soaking tub in the bathroom.

This residence also has a second bathroom with a shower, so your privacy is maintained even when entertaining guests.

The furnishings are all designed to be flexible. The Murphy bed folds up out of the way during the day to make room for an extra seating area.

This residence has a light and fresh ‘coastal’ interior design style. Loads of thoughtful storage spaces are utilized throughout the home.

Shared Purchase
Freedom
Flexibility
Seasonal
Resort Living
Affordable
The Buying Process
1
Select a residence
2
Select a season
3
Complete the payment
4
Join the community
RU1 Bar RU1 Day viewB
RU 1 Night View RU1 Night view
RU 1 Bathroom RU1 Bathroom
Typical balcony, RU4 shown RU4 Balcony
RU1.2
RU1.2
Deck_8
Floor Plan for Deck 8
RU3

RU 3 Indulge RU 3

No.
#9010

$ 1,185,075 $2,755,808 $1,913,625 $2,264,371 $2,755,808

560 sq ft
(52 m2)

*All dimensions and unit sizes are approximate and subject to change.
  • Location
  • Deck Level
    9
  • Type Variant
    RU 3
  • Side of Ship
    Port
  • Location
    Forward
  • Annual Inclusive Living Fees Equals just $4,715 per person per month
    Based on 2 people twin share
    all inclusive*
    • 45 unique resident lounges
    • Private kitchen facilities
    • All meals in 20 unique dining venues
    • Beverages including select wine, beer, spirits, cocktails, coffees, juices, blends
    • 24-hour room service
    • Fast Internet and Wi-Fi throughout the ship
    • Dozens of kitchen entertainment areas to prepare food yourself
    • Premium satellite television
    • Laundry pick-up wash and fold, or self-service laundry
    • Gym, fitness facilities, recreational and sporting equipment
    • Oceanside marina precinct with direct water access and watercraft
    • Yoga studio, chapel, artist studio, and many unique areas
    • A world of activities, events, sports, arts, performances, music, dancing, exercise
    • Hobby areas from fishing and tackle and golf to
    • Checkup and wellness visits with the onboard doctor
    • All onboard service gratuities
    • Fuel, port taxes, and Insurances
    • Upkeep of vessel to 5-star
    • Stylishly decorated spaces to live in surrounded by inspiring art and fresh food gardens
    • Billion dollar views from every balcony changing weekly
    $113,160

RU 3 Indulge

No. #9010

560 sq ft

Designed in a variety of configurations, that combine intimacy of a studio with a comfort and convenience of en-suite bathrooms and separate lounge and kitchen areas. View can be enjoyed from your own private balcony.

The spacious RU2 homes available for 25% Shared Purchase are outside balcony units with two Murphy beds. There is a dry minibar to separate the spaces. The minibar includes an under-counter refrigerator and microwave.

At over 29 feet long plus your private balcony, you have multiple areas to spread out and get comfortable.

The furnishings are all designed to be flexible. One of the Murphy beds folds up out of the way during the day and is replaced with a couch. The other bed folds up to a flat wall to make space for a table and chairs.

This residence has a light and fresh ‘coastal’ interior design style. There are many thoughtful storage solutions utilized throughout. The bathroom features a shower stall.

Upon entering this spacious home at sea you will notice an open floor plan with views from every room.

There is a four-seat dining table for entertaining guests and family. The wet bar includes a microwave, two burner induction cooktop, and an under-counter refrigerator and freezer. The sink includes a multi-tap filtered water system with sparkling, chilled and boiling water.

A generous lounge area is a comfortable place to relax and watch your favorite shows on TV or to make the most of the ever-changing views.

The balcony includes a two-person hanging loveseat and a place to enjoy your morning coffee or stargaze in the evening.

The primary bedroom has a large walk-in wardrobe and double vanity with a full soaking tub in the bathroom.

This residence also has a second bathroom with a shower, so your privacy is maintained even when entertaining guests.

The furnishings are all designed to be flexible. The Murphy bed folds up out of the way during the day to make room for an extra seating area.

This residence has a light and fresh ‘coastal’ interior design style. Loads of thoughtful storage spaces are utilized throughout the home.

Shared Purchase
Freedom
Flexibility
Seasonal
Resort Living
Affordable
The Buying Process
1
Select a residence
2
Select a season
3
Complete the payment
4
Join the community
RU 3 Livingroom RU3 Livingroom
RU 3 Bedroom RU3 Bedroom
RU 3 Bathroom RU3 Bedroom
Typical balcony, RU4 shown RU4 Balcony
RU3
RU3
Deck_9
Floor Plan for Deck 9